2 bed flat to let 2 Elmira Street, London, Greater London SE13

Key info

  • Status: To rent
  • Type: Flat
  • Bedrooms: 2
  • Receptions: 1
  • Bathrooms: 2
  • Area: 2 Elmira Street, London, London

Price changes

-4.5% £485 26 days ago
£508 one month ago

Full description

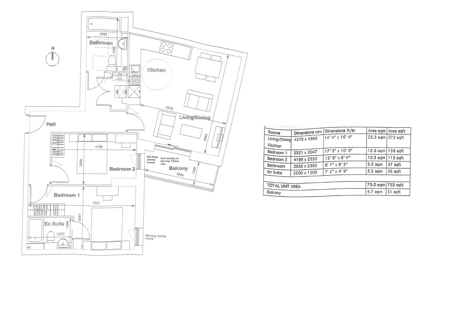
Offers over £2100 - £2250A spacious modern two double bedroom, two bathroom apartment in Venice Corte, part of the highly desirable Barratt Renaissance development at Lewisham.Situated on the fifth floor, you rise above London and have lovely views from your private balcony. This luxurious apartment benefits from a modern fitted and integrated kitchen (integrated oven, hob, microwave, fridge freezer and dishwasher as well as a separate washing machine/dryer located in a separate laundry closet).There is stylish wooden amtico flooring throughout, a private balcony from the living room and both bedrooms benefit from a built in modern mirrored wardrobe. This property is offered furnished to a good standard and is available in April 2020. Renaissance offers exceptional transport links to the City, West End and Victoria. Greenwich is five minutes from Lewisham by DLR, where you can visit historic landmarks such as the National Maritime Museum or take in the views of Greenwich Park. By train, it’s just 14 minutes to Waterloo or eight minutes to London Bridge, where you can walk along the South Bank beside the River Thames.Venice Corte is a short walk from Lewisham High Street where you'll find a wide selection of pubs, bars, restaurants and the bustling Lewisham market. For day-to-day necessities there's a large 24-hour Tesco superstore just 0.4 miles away.Please call or email to arrange your internal view today.

More articles