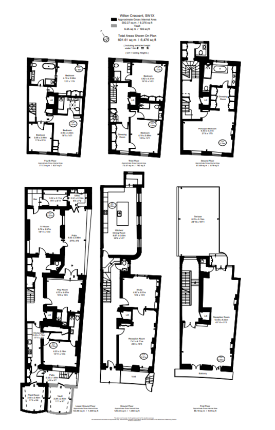
Positioned on one of Belgravia’s most prestigious crescents, this remarkable seven-bedroom townhouse offers over 6,400 sq ft of beautifully crafted living space. The property has been renovated to the highest standard, balancing period grandeur with a clean, contemporary finish. A private lift connects every floor, while tall windows and high ceilings create a light and expansive atmosphere throughout.The layout has been designed for both entertaining and everyday living. The principal reception rooms are refined yet welcoming, complemented by a study, cinema/TV room, and a flexible gym or playroom. There are six en suite bedrooms, including a luxurious principal suite, as well as a separate staff bedroom.Two private terraces extend the living space outdoors, one featuring a bespoke dining area with a built-in barbecue-perfect for summer evenings.Wilton Crescent offers both privacy and prestige. From here, Hyde Park, the boutiques of Belgravia and Knightsbridge, and the cultural landmarks of South Kensington are all within easy reach.Council tax band: HEPC Rating: DOur China Desk is here for you, if Chinese is your preferred language, please get in touch via WeChat (ChestertonsLettings)
When renting a property, there are various costs that you will need to take into consideration when making an offer. Below, we have outlined the applicable charges payable when renting a home from Chestertons: - Tenant administration fee: £222 (inc. VAT) This is payable after your offer has been accepted and we have proceeded to draw up a tenancy agreement. - Reference fee for each Tenant or Guarantor: £42. This is payable when you have agreed to undergo the independent referencing process. References are carried out by an independent Third Party. - Renewal administration fee: £96 (inc. VAT). This is payable upon renewal, should you and your landlord mutually agree to renew the tenancy for a further term. - Inventory charges. In most lets, tenants will be responsible for paying for the inventory check out costs upon ending a tenancy. The cost is approximately £95 - £250 (Plus VAT) dependent on the size of the property. When budgeting prior to your home search, do not forget to also factor in your Tenancy Deposit, which is usually the equivalent of 6 weeks' rent. Tenants will also normally be responsible for paying for a professional clean at the end of the tenancy. Should you have any queries regarding the charges and costs associated with renting a property, please do not hesitate to contact one of our lettings consultants who shall be happy to explain these in further detail.