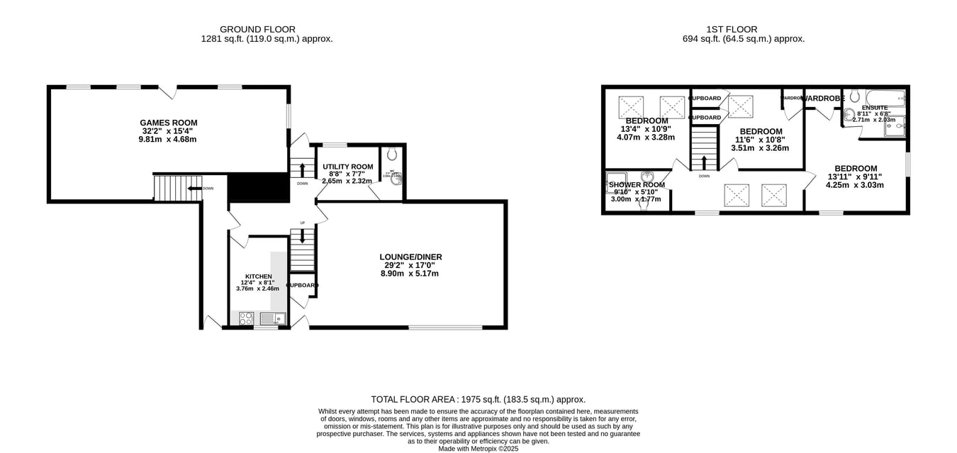
Situated on a courtyard with two other properties, in a delightful rural location is this lovely, spacious, three bed barn conversion. On the ground floor there is a good size living/dining room, kitchen, utility and cloakroom. There is also a large games room. Upstairs there are three bedrooms, a shower room and en-suite bathroom. Outside at the front there is parking. The rear garden is a good size and backs onto farmland enjoying wonderful countryside views.- rent £1,000 pcm- deposit £1,000- Available now- Unfurnished- Council Tax Band 'F'- Oil fired central heating- Private water and drainage- Pets consideredplease note: All contract holders are required to complete an application form providing references. We will also require information to carry out A credit check which is provided by A third party.
- Holding deposit if required. This will be the equivalent of one weeks rent.
- Utilities during the tenancy such as council tax, water, gas, electric, TV and telephone. This includes reconnection if disconnected caused by tenants omission and to pay final accounts at the end of the tenancy.
- Overdue rental payments will be subject to interest at the rate of 6%pa.
- 20 to the agent for any payment presented to the agents bank but returned, refused or represented by the bank for any reason. This fee will be payable for each presentation which fails.
- Payment for the cost of any contractors that the Tenant arranges without having previously obtained the Landlords authority, unless acting for emergency repairs for which the Landlord is liable.
- Payment for the cost of any damage caused by the tenants or their visitors. For example, a broken window pane or a blocked drain caused by the tenant. The amount will be determined by the invoice provided.
- Payment for the cost of contractors attending the property as arranged if the tenant refuses entry or is not home. The amount will be determined by the invoice provided.
- Payment for the cost of replacing the locks and cutting of new keys if keys are lost or not returned when the Tenant moves out. The amount will be determined by the invoice provided.
- Payment for any excess on the Landlords insurance if the claim results from the negligence or misuse by the Tenant or any of their visitors. The amount will be determined by the invoice provided.
- Payment for the removal of all vermin, pests and insects, if infestation begins during the tenancy, woodworm and woodboring insects excepted, unless such infestation occurs as a failure of the Landlord to fulfil his repairing obligations. The amount will be determined by the invoice provided.
- Pay the costs of any court action taken for possession of the property or breach of tenancy, as provided for in the courts judgement.
Payment methods accepted- Cash, bank transfer or cheque. Please note cheques may require 5 working days is clear. We do not have a card machine in our offices.