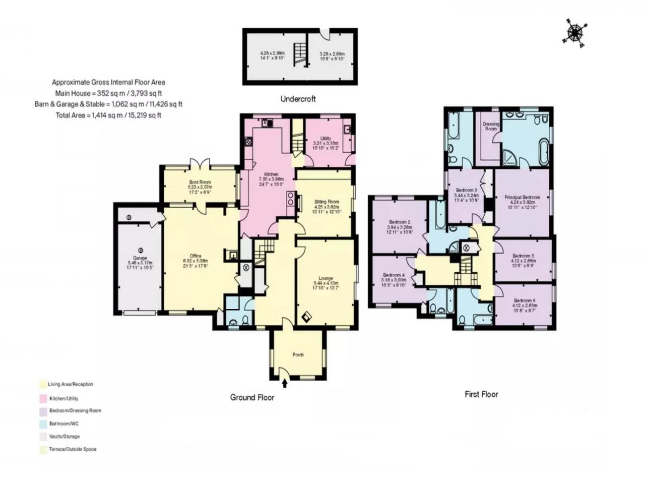
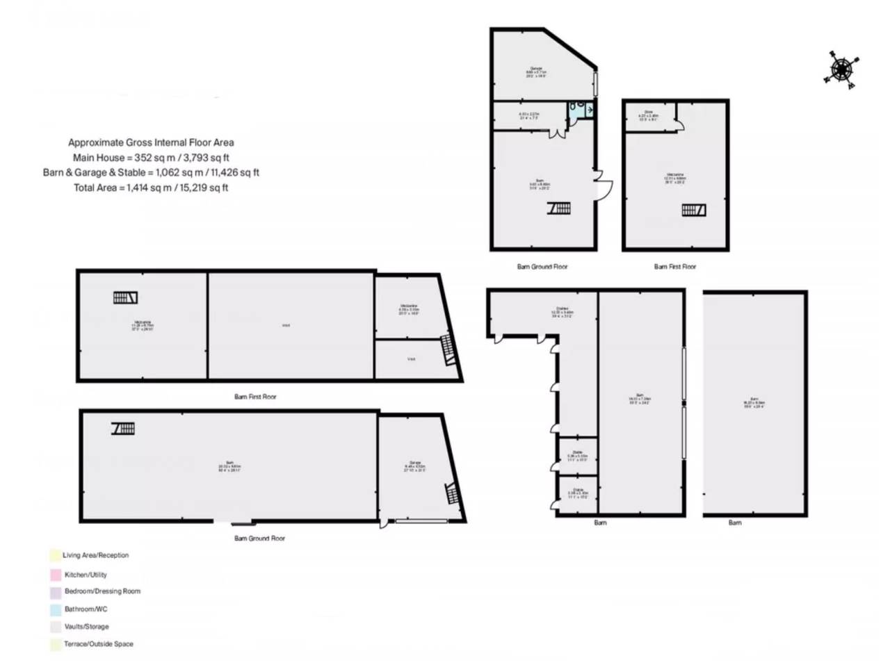
Lettings R Us are pleased to present a six bedroom detached house situated in the hamlet of Lower Whatley. The property accommodation comprises: Porch, inner hallway, lounge with wood burner and views, sitting room with wood burner and views, office/games room, open planned kitchen/breakfast room with a range of wall and base units, Aga and a Belfast sink, utility room, two pantries (one has access to the cellar), sun/boot room and downstairs cloakroom/shower rm. Upstairs can be found a master bedroom with en-suite bathroom and dressing room, three further double bedrooms with en-suite bathrooms (one is a Jack and Jill), two further double bedrooms and a family bathroom. Outside can be found an integrated garage, driveway for parking, formal gardens with stone pond and mature trees, footpaths leading to woodland and a wild swimming pool, four barns comprising a shower room, garaging (currently used for storage and workshops) and stables. The property sits in 26 acres of land that is rented to a local farmer for grass keep, to keep the fields tidy. This land is not for rent, but the tenants may walk on it if desired. The property benefits from solar panels. There is also an oil boiler if needed, and the oil-fired aga can also act as water heater if necessary. The property is 4.6 miles from Babington House, 2.7 miles from Frome, 10.2 miles from Bruton, 13.7 miles from The Newt and 15.7 miles from Bath (all distances are approximately). Pets allowed with five weeks deposit. The property can be part-furnished or unfurnished.?Available 17th November 2025!EPC - BCouncil Tax Band - Etenants: If you choose to take the tenancy on one of our properties; we will ask you to pay a holding deposit of one week?s rent per property. This is taken as a holding deposit to reserve you the Property and will be reimbursed off of the first month?s rent, unless you fail the credit checks and referencing and then we will be entitled to deduct and retain from the holding deposit. E.G. If the rent is 850pcm then the holding fee will be 196.15. We will be entitled to deduct and retain from the holding deposit if you decide to withdraw from the tenancy or if you fail your credit checks, provide false or misleading information, fail to provide the documents or evidence requested or fail the right to rent checks; it will be refundable if the landlord decides to withdraw.Property Particulars: We endeavour to make our property particulars accurate and reliable, however, they do not constitute or form part of an offer or any contract and none is to be relied upon as statements of representation or fact. Any services, systems and appliances listed in this specification have not been tested by us and no guarantee as to their operating ability or efficiency is given. All measurements have been taken as a guide to prospective renters only, and are not precise. If you require clarification or further information on any points, please contact us, especially if you are travelling some distance to view.Redress Scheme: The Property Ombudsman -?Tenancy Deposit Scheme: We lodge deposits with the dps ? Deposit Protection SchemeClient Money Protection Insurance ? Member of Client Money Protect - CMP004791
Holding Deposit: If you choose to take the tenancy on one of our properties we will ask you to pay a holding deposit of one week’s rent per property. This is taken as a holding deposit to reserve you the Property and will be reimbursed off of the first month’s rent, unless you fail the credit checks and referencing and then we will be entitled to deduct and retain from the holding deposit. E.G. If the rent is £850pcm then the holding fee will be £196.15. We will be entitled to deduct and retain from the holding deposit if you decide to withdraw from the tenancy or if you fail your credit checks, provide false or misleading information, fail to provide the documents or evidence requested or fail the right to rent checks; it will be refundable if the landlord decides to withdraw.
Our deposits are calculated as the same amount as one month’s rent and if pets are allowed then this would usually be five weeks deposit. (This will be stipulated in the description).
Additional Charges:
Rent Default Charges –In the event of any rent default, interest of 3% above Bank of England base rate will apply to any rent due from the day of any default. The interest can only be charged in the event that the rent default continues for a minimum of fourteen days after the rent default occurs. For the current Bank of England base rate please visit the following website
Key/Security Device Lose - Should the tenant lose their keys/security device to pay the Landlord for the reasonable cost of providing replacement keys or security devices for the property up to a maximum of £50 inclusive or greater where the Landlord has receipts or evidence to show such costs have been incurred.
Breakage Clause – Pay the Landlord, where a surrender of the tenancy has been agreed, any losses incurred by the Landlord on acceptance of the surrender, which could be but not limited to the remaining rent for the term, re advertising costs, utility supply costs, council tax and costs for any legal services retained. If the landlord allows then the tenant can be released from the contract on payment of 50% of the first months’ rent (plus VAT) or £300 (inclusive of VAT), whichever is greater. (E.G. If the monthly rent was £600, the fee would be £360 inclusive of VAT). Once a new tenant has moved into the property the liability will be on the new tenant and the current tenant will be released from the contract. (Should your rental amount be higher or lower than the example price, your breakage fee will be correspondingly higher or lower).
Contract Amendments/Variation/Assignment/Novation - Pay the Landlord a maximum of £50 inclusive or greater where the Landlord has receipts or evidence to show such costs have been incurred, for each amendment/change to the Tenancy Agreement requested by the Tenant and agreed by the Landlord.