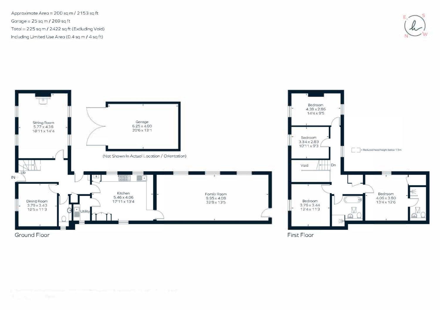
This superb family home offers generous and versatile living space. The inviting entrance hall with cloakroom leads into a beautifully proportioned dual-aspect sitting room with feature fireplace and wood burner. The kitchen is fitted with quality units, extensive storage and integrated appliances, with ample space for informal dining and an adjoining utility room. Further ground floor accommodation includes a family room and a separate dining room, providing excellent flexibility for modern family living.Upstairs, a spacious landing gives access to the principal bedroom with en suite facilities, three further bedrooms, and a well-appointed family bathroom. Externally, the property occupies a generous plot, with extensive off-street parking to the front, a detached garage, and an enclosed rear garden laid to lawn with mature trees and well-planted borders.Viewings are welcomed by appointment 6 days a week although be aware that viewings may require at least 24 hours' notice to arrange access. Please note that prior to any subsequent tenancy offer being accepted, all prospective tenants will be required to supply identification documents and proof of affordability. Viewings are welcomed by appointment 6 days a week although be aware that viewings may require at least 24 hours' notice to arrange access. Please note that prior to any subsequent tenancy offer being accepted, all prospective tenants will be required to supply identification documents and proof of affordability.Agent notes: These particulars have been prepared as a general guide only. A detailed survey has not been carried out, nor the services, appliances, fittings, etc, been tested. If room sizes are included, they are for guidance and illustration purposes only. They may not be to scale and should not be relied upon for furnishing or other purposes. If there are any important matters likely to affect your decision to proceed, please contact us before viewing the property.Tenant protection: Moore Allen & Innocent is a member of the royal institution of chartered surveyor's client money protection scheme, and a member of the property ombudsman independent redress scheme. You can find out more details via our website or by contacting the office directly.Landlords: Do you own a similar property? Moore Allen & Innocent are an independent, multi-award winning, sales and lettings estate agency with over 175 years of property experience across the Cotswolds and beyond. If you have a similar property that you would like rented out or are looking for an agent to take away the stress and manage a property for you, we would be delighted to discuss how we can help. For more information regarding our services and a free, no-obligation review, please contact us today.
Relevant Letting Fees and Tenant Protection Information As well as paying the rent, you may also be required to make the following permitted payments. Permitted payments Before the tenancy starts (payable to Moore Allen & Innocent the Agent) Holding Deposit: 1 weeks rent Deposit: 5 weeks rent During the tenancy (payable to the Agent) Payment of up to £ 50 incl. Vat if you want to change the tenancy agreement. Payment of interest for the late payment of rent at a rate of 3% over bank base rate. Payment of up to £ 50 incl. Vat for the reasonably incurred costs for the loss of keys /security devices. Payment of any unpaid rent or other reasonable costs associated with your early termination of the tenancy. During the tenancy (payable to the provider) if permitted and applicable Utilities gas, electricity, fuel oil, water, sewerage Communications telephone and broadband Installation of cable /satellite where permitted Subscription to cable /satellite supplier Television licence Council Tax Other permitted payments Any other permitted payments, not included above, under the relevant legislation including contractual damages. Tenant protection Moore Allen & Innocent is a member of the RICS Client Money Protection Scheme, which is a client money protection scheme, and also a member of The Property Ombudsman (TPO) which is a redress scheme. You can find out more details on the agents website or by contacting the agent directly.